ua
Type: Commercial
Style: Contemporary rustic
Location: Sokolivka, Ivano-Frankivsk region, Ukraine
Area: 79 m2
Year: 2026
Viz: Viktoria Lazarchyk, Natalia Golovata
Project Overview
The Sokolivka is a renovation of a traditional Hutsul dwelling located in the Carpathian region of Western Ukraine. Designed as both a private residence and a rental retreat space, the project serves as a prototype for the upcoming retreat center focused on restoration, stillness, and reconnection with natural rhythms.
The 79 m² house was reimagined with respect for its historical identity while adapting it to contemporary living standards. The design explores the delicate balance between heritage preservation and modern spatial comfort, creating an environment where tradition is not replicated but thoughtfully reinterpreted.
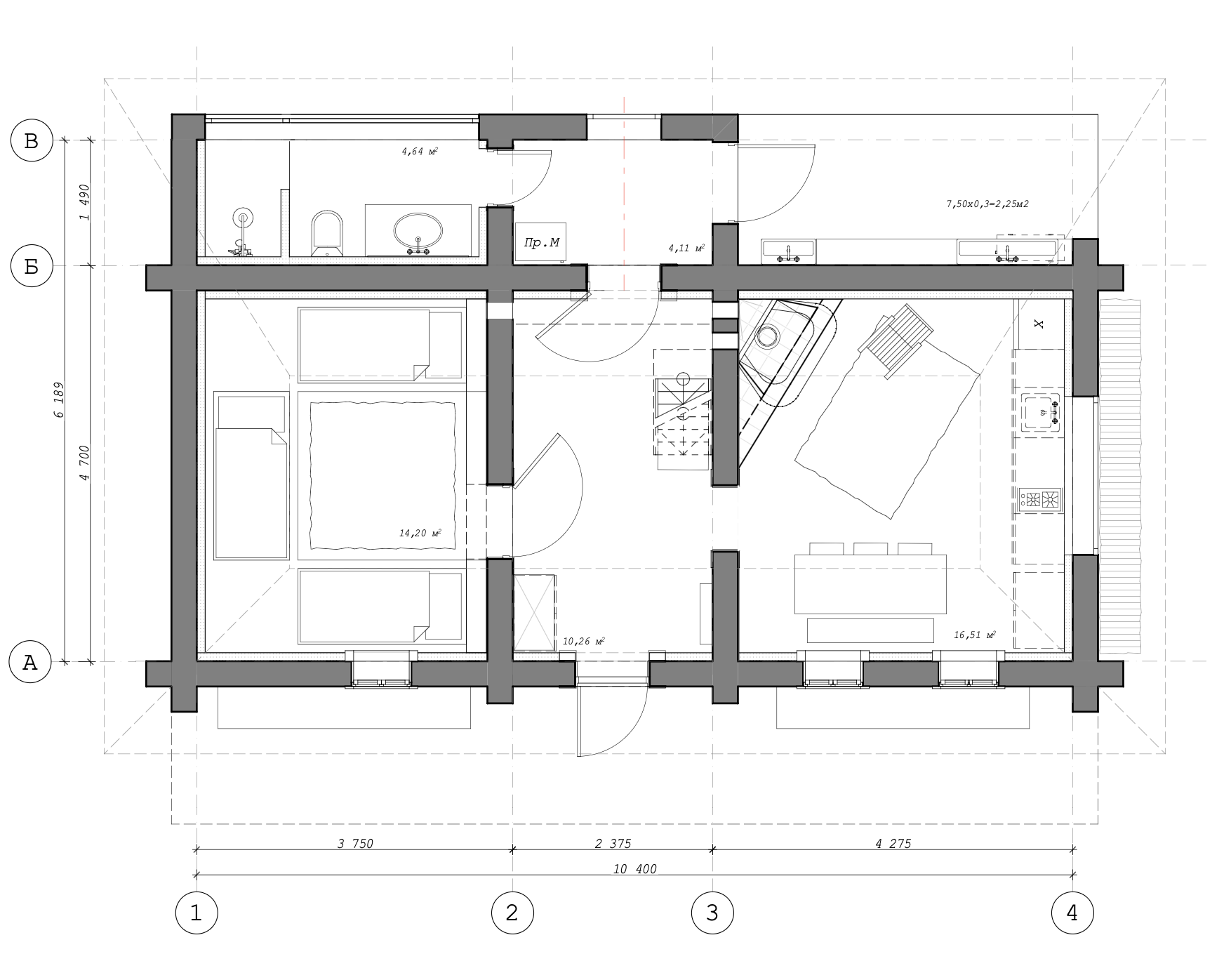
Spatial Planning & Functional Zoning
The spatial organization preserves the intimate scale typical of traditional Hutsul houses while introducing improved circulation and functionality suitable for both private living and short-term stays.
The annex serves as a transitional zone that bridges the main living spaces with outdoor terraces, creating layered spatial experiences. The terrace functions as an extension of interior life, encouraging seasonal outdoor rituals and direct contact with nature.
The zoning supports flexibility, allowing the house to operate as both a personal refuge and a hospitality space.


Context & Cultural Heritage
Hutsul architecture is deeply rooted in the Carpathian landscape, shaped by climate, craftsmanship, and the philosophy of coexistence with nature. The original house reflects this vernacular logic through its wooden structure, compact scale, and tactile materiality.
The renovation aimed to preserve the authentic architectural language while allowing the house to evolve into a space relevant to present-day life. Special attention was given to maintaining local identity through the use of regional materials and traditional craftsmanship, ensuring that the project continues the cultural narrative rather than freezing it in time.



Interior Design Language
The interior palette is intentionally restrained and tactile, allowing materials to shape the visual and sensory experience of the space.
Travertine flooring introduces a grounded, timeless quality, while spruce flooring and plywood elements add warmth and continuity with the wooden structure of the house. Stucco walls provide softness and light diffusion, balancing the expressive textures of wood and stone.
Glass elements enhance natural illumination and create visual permeability between spaces. Textile-based LED lighting introduces a soft atmospheric glow that reinforces the feeling of calm and intimacy.
The color palette is derived from natural surroundings, combining muted natural tones with accents of light green and soft yellow, reflecting the seasonal colors of the Carpathian landscape.

Craftsmanship & Local Materials
Local craftsmanship played a fundamental role in shaping the identity of the project. Traditional wood processing techniques were applied during structural restoration and in interior detailing.
Kosiv ceramics were incorporated as functional and decorative elements, preserving a significant regional artistic tradition. Wool textiles and handcrafted wood details further reinforce the tactile and cultural authenticity of the space.
By collaborating with local artisans, the project supports the continuity of regional knowledge and strengthens the connection between architecture and cultural heritage.
Existing Condition & Challenges
The house was inherited as an aging wooden structure requiring careful restoration. The original timber walls remained structurally valuable and were preserved, while the wooden shake roof and window systems demanded complete renovation to meet modern performance and durability standards.
One of the key challenges was integrating contemporary functional requirements, particularly sanitary facilities, without compromising the integrity of the historical volume. This led to the creation of a carefully designed annex that complements rather than competes with the original architecture.

Architectural Renovation Strategy
The renovation prioritized preservation of the original wooden wall structure, which forms the cultural and spatial core of the house. The roof was reconstructed using traditional wooden shakes, restoring both authenticity and weather resistance.
A new annex was added to accommodate modern bathroom facilities and expand the functional capacity of the house. The annex also introduces a terrace that strengthens the relationship between interior spaces and the surrounding landscape.
The architectural language of the extension remains restrained, using natural materials and proportional harmony to ensure continuity between old and new volumes.
Concept & Design Philosophy
The conceptual foundation of the project is built around duality — light and shadow, tradition and modernity, openness and intimacy. The design intentionally embraces contrast as a tool for creating spatial and emotional depth.
The house was envisioned as a place of retreat where architectural silence allows occupants to reconnect with themselves and their surroundings. The intervention respects the original character of the structure while introducing subtle contemporary elements that enhance comfort and usability.
Rather than reconstructing tradition literally, the project interprets it through material honesty, simplicity of form, and sensitivity to atmosphere.


Sustainability & Longevity
The renovation approach prioritizes natural, durable materials and repairable construction techniques, extending the lifecycle of the building. The preservation of the existing structure significantly reduced environmental impact while maintaining historical authenticity.
The house utilizes passive environmental strategies such as natural ventilation, thermal mass from mineral materials, and high-quality timber elements to enhance energy efficiency and indoor comfort.




Emotional & Experiential Narrative
This house is designed as an atmosphere rather than simply a physical structure. The house invites occupants to slow down, recharge energy, and reconnect with stillness.
Natural light moves gently across textured surfaces, emphasizing the rhythm of the day. The interplay between shadow and illumination creates a meditative spatial experience where simplicity becomes restorative.
The house supports quiet rituals of daily life, encouraging contemplation, rest, and a renewed relationship with nature.


Project Outcome & Value
The project demonstrates how vernacular architecture can evolve through thoughtful contemporary intervention while maintaining cultural authenticity. Sokolivka House serves as both a functional living environment and a prototype model for future retreat developments.
By combining heritage preservation, local craftsmanship, and modern comfort, the project contributes to the ongoing dialogue between tradition and contemporary architecture in the Carpathian region.
